Vendite €700.000 - Appartamento, Condominio, Palazzi, Residenziale
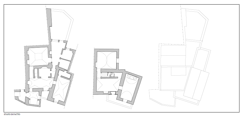
Proponiamo in vendita un immobile prestigioso nel centro storico della cittadina di Locorotondo, fiorente paesino della Valle d’Itria in Puglia. l’immobile a pochi metri dalla piazza principale del paese (p.zza Vitt. Emanuele) e dalla incantevole “villa comunale” panoramica (villa Garibaldi) e dal rinomato “lungomare” (via Nardelli), zona ricca di luoghi d’incontro; vicina al corso principale (c.so XX settembre) e ad aree di parcheggio comunali. La proprietà in vendita è una porzione del palazzo tardo settecentesco, con ampliamenti del secolo successivo nonché del primo novecento, appartenuto da sempre ad una delle famiglie storiche del borgo. Si accede dall’ingresso principale al primo piano attraverso una scala ampia e comoda con pianerottolo in comune con un altra proprietà. – il primo piano, costituito da sette locali e due bagni e un ripostiglio, ha le volte alte e a “stella” e “a cielo di carrozza”, e gli ambienti sono particolarmente ampi e luminosi; particolari caratteristiche sono la tipica e romantica balconata coperta di mq 4, detta “cacciata”, che si affaccia sulle sottostanti vie del centro storico, nonché per l’autentico e il romantico “focarile” dotato di caminetto ed attrezzato con le panche laterali, le nicchie per riporre gli oggetti e munito degli originari utensìli di famiglia, nonché per la fruibilità dell’ampia terrazza (mq 31) che si affaccia sui “giardini” privati di alcuni palazzi storici del luogo e sulla chiesa del Santo Patrono San Rocco; i vani sono dotati di funzionali “stipi” a muro utilizzati come armadi, dispense ed espositori nonché di nicchie per riporre oggetti e c’è un comodo ripostiglio “sottoscala”; le porte interne sono in legno massello; – al secondo piano si accede mediante una scalinata interna, costituito da tre locali, ha le volte alte a “botte” e a “cielo di carrozza”; gli ambienti sono ampi e luminosi; si caratterizza per l’unicità di una autentica e originaria “cappella con altare”, corredata con finimenti sacri autentici e dell’epoca, nonché di reliquie, e resa molto luminosa attraverso i tre “oculi” costruiti sulla parete verticale esterna, in alto, dietro l’altare; detta “cappella” privata fu voluta dai prelati della famiglia. Da questa stanza si accede alla balconata (mq 9) con vista sulle “cummerse” e sulle sottostanti vie del centro storico; altra caratteristica è costituita da un ampio vano pavimentato con l’introvabile “cocciopesto” dell’epoca, ancora in ottimo stato conservativo che ha una finestra con vista panoramica sulla Valle d’Itria; i vani sono dotati di funzionali “stipi” a muro e di nicchie per riporre oggetti. – al lastrico solare si sale attraverso una scala interna ampia e comoda, caratterizzata dal tipico “orio” dell’epoca, ovvero dall’orditura del tavolato a solaio che veniva utilizzato per riporre gli approvvigionamenti; il lastrico solare, molto ampio, è costituito dai tetti a “cummerse” nonché da un romantico terrazzo (mq 18) che ha una posizione talmente esclusiva da far godere di un panorama ineguagliabile e veramente unico a Locorotondo: si può quasi abbracciare il campanile della chiesa madre del Santo Protettore San Giorgio, ammirare da vicino la chiesa del Santo Patrono San Rocco, scorgere il limitrofo “municipio vecchio” con la torre dell’orologio ed i sottostanti tetti del centro storico; contemplare la Valle d’Itria a perdita d’occhio, le colline di Laureto e delle Lamie Affascinate, nonché della Selva di Fasano e della Contrada San Marco (la più estesa e grande dell’agro di Locorotondo); e far scorgere i vicini paesi di Martina Franca, di Cisternino, di Ceglie Messapica. L’immobile si presenta in ottime condizioni, può essere suddiviso in più immobili per scopi ricettivo-turistico o dimora di charme.






















































































